Din varukorg är för närvarande tom.
NIXOR oljeavskiljare 6/1200 betong
66 875 kr
Oljeavskiljarpaket för spolplattan
Frakt ingår i Sverige, men lossning ingår ej.
NKO 6/600
Flödeskapacitet: 6 l/s
Slamfång 1200 liter
Rör anslutningar: 160 mm
Vikt: 4950kg
Kontakta oss för en dimensionering och kostnadsförslag av just ditt system.
Alla NIXOR NKO oljeavskiljare är utformad enligt standarden SS-EN 858 vilket gör att de tillhör klass 1.
Det finns även en Ultra-modell som klarar 0,5 mg/l, det vill säga 10 gånger bättre än standard Klass 1.
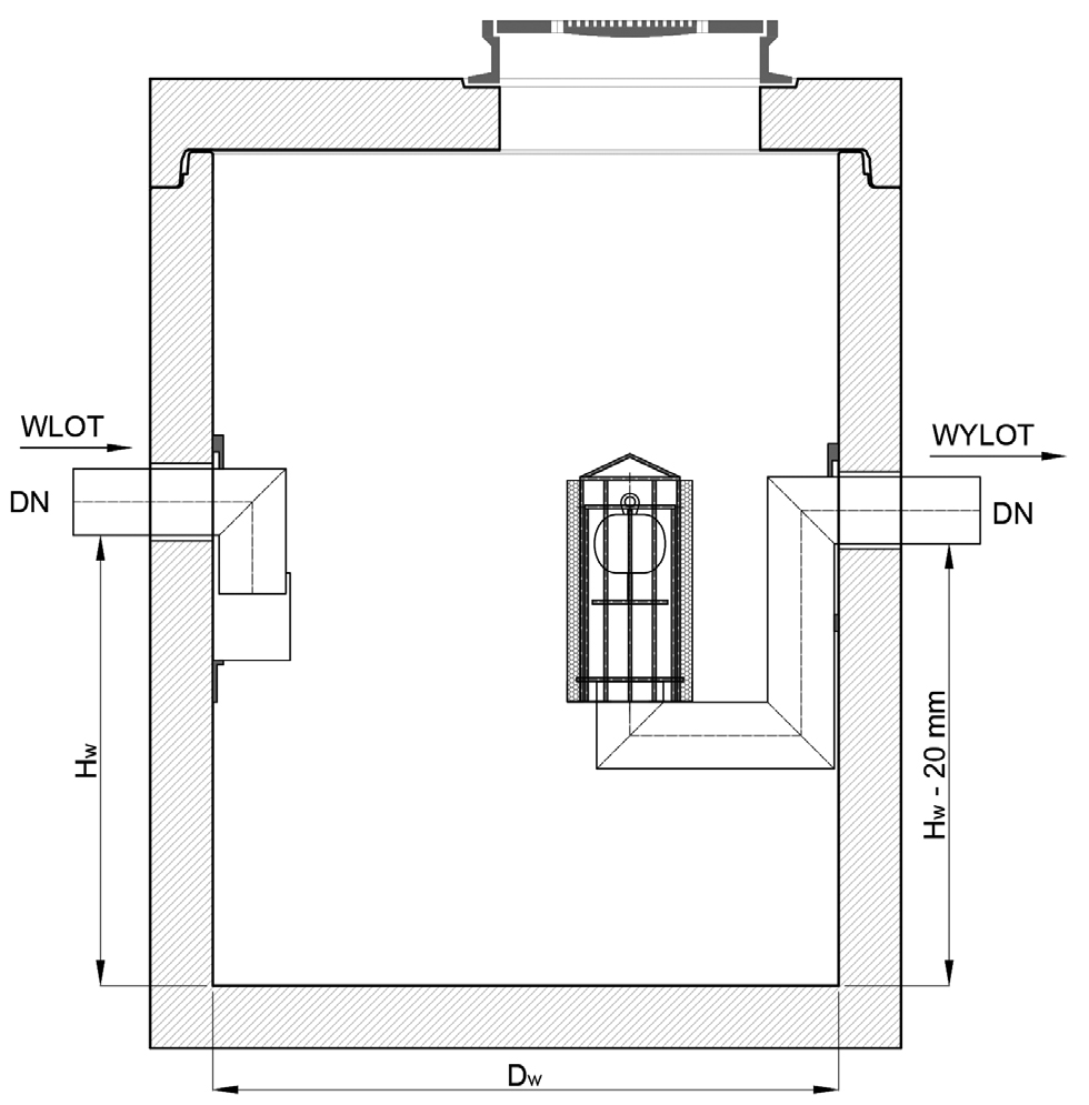
Oljeavskiljaren är avsedd för behandling av oljehaltigt spillvatten.
Avskiljaren är utrustad med integrerat slamfång, automatisk avstängningsventil.
Avskiljarna är tillverkad i betong.
Betong klarar de flesta markförhållanden och är självförankrande. I många fall kan Återfyllning av schakt ske med befintliga massor, vilket sparar pengar och tid.
Förläggningsdjup
Betong klarar normalt sett nedgrävningsdjup på 5–6 m.
A-mått:
För att få korrekt halshöjd bestäms A-måttet, d.v.s. avståndet mellan färdig mark och vattengång.
Vid behov beställs extra förhöjninghals då höjden är mer än A min som finns på ritningen, fråga oss om råd.
Vikt
Vikten på avskiljaren är med lock, locket kan lossas separat och vikten är beroende på diameter på avskiljaren och är följande:
- 1000mm väger locket 500kg
- 1200mm väger locket 700kg
- 1500mm väger locket 1100kg
- 2000mm väger locket 1900kg
- 2500mm väger locket 2950kg
Ingår vid leverans
- Integrerat slamfång.
- Avluftningsanslutningar Ø110/160 och kabelrörsurtag/anslutning Ø 50 mm
- Automatisk avstängningsventil
- Lyftöglor
- Körbart lock i gjutjärn som klarar 40 ton
- Larm SQUEALER SET-110 med två givare för oljenivå och överfyllnad.
Tillval
- Larm SQUEALER SET-111 med tre givare för oljenivå och överfyllnad och slamnivå.
- Provtagningsbrunn i plast med plastlock
- Provtagningsbrunn i plast med teleskoprör och körbar betäckning 40 ton
- Provtagningsbrunn i betong med körbart 40 ton betonglock eller gjutjärnslock
Produktdetaljer
Oljeavskiljarpaket för spolplattan
Frakt ingår i Sverige, men lossning ingår ej.
NKO 6/600
Flödeskapacitet: 6 l/s
Slamfång 1200 liter
Rör anslutningar: 160 mm
Vikt: 4950kg
Kontakta oss för en dimensionering och kostnadsförslag av just ditt system.
Alla NIXOR NKO oljeavskiljare är utformad enligt standarden SS-EN 858 vilket gör att de tillhör klass 1.
Det finns även en Ultra-modell som klarar 0,5 mg/l, det vill säga 10 gånger bättre än standard Klass 1.
Oljeavskiljaren är avsedd för behandling av oljehaltigt spillvatten.
Avskiljaren är utrustad med integrerat slamfång, automatisk avstängningsventil.
Avskiljarna är tillverkad i betong.
Betong klarar de flesta markförhållanden och är självförankrande. I många fall kan Återfyllning av schakt ske med befintliga massor, vilket sparar pengar och tid.
Förläggningsdjup
Betong klarar normalt sett nedgrävningsdjup på 5–6 m.
A-mått:
För att få korrekt halshöjd bestäms A-måttet, d.v.s. avståndet mellan färdig mark och vattengång.
Vid behov beställs extra förhöjninghals då höjden är mer än A min som finns på ritningen, fråga oss om råd.
Vikt
Vikten på avskiljaren är med lock, locket kan lossas separat och vikten är beroende på diameter på avskiljaren och är följande:
- 1000mm väger locket 500kg
- 1200mm väger locket 700kg
- 1500mm väger locket 1100kg
- 2000mm väger locket 1900kg
- 2500mm väger locket 2950kg
Ingår vid leverans
- Integrerat slamfång.
- Avluftningsanslutningar Ø110/160 och kabelrörsurtag/anslutning Ø 50 mm
- Automatisk avstängningsventil
- Lyftöglor
- Körbart lock i gjutjärn som klarar 40 ton
- Larm SQUEALER SET-110 med två givare för oljenivå och överfyllnad.
Tillval
- Larm SQUEALER SET-111 med tre givare för oljenivå och överfyllnad och slamnivå.
- Provtagningsbrunn i plast med plastlock
- Provtagningsbrunn i plast med teleskoprör och körbar betäckning 40 ton
- Provtagningsbrunn i betong med körbart 40 ton betonglock eller gjutjärnslock



